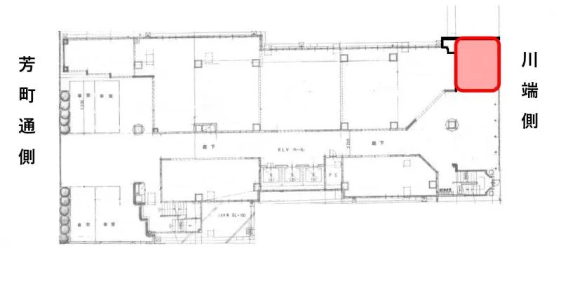
ギャラリーヤマモトビル1階スペース
おすすめコメント
キッチンカーのスペースをお探しの方ぜひご検討下さい。
※ご相談も受付ております。
(預り保証金は業種により増減します)
- 募集中
| 賃料 | 18.0万円 | 階建/階 | 7階建 / 1階 |
|---|---|---|---|
| 敷金 | なし | 礼金 | なし |
| 間取り | 駐車場 | なし | |
| 住所 | 福岡県福岡市博多区中洲3丁目6-7 | ||
| 交通 | 福岡市箱崎線中洲川端駅 徒歩:5分/325m 福岡市空港線中洲川端駅 徒歩:5分/325m 福岡市箱崎線呉服町駅 徒歩:10分/796m |
||
| 平米数 | 坪数 | 4.93坪 | |
|---|---|---|---|
| 保証金 | 3ヶ月 | 管理費 | なし |
| 衛生費 | なし | 火災保険 | なし |
| その他料金 | なし | ||
| 引渡 | 相談 | 状況 | 空き |
| 契約期間 | 建物構造 | 土地 | |
| 出店可能 | テナント/重飲食 | ||
地図・立地
福岡県福岡市博多区中洲3丁目6-7周辺の地図
福岡市博多区中洲3-6-7ギャラリーヤマモト1階



